...Schlafetagen

                                                                                                                    

Zurück
...Untergeschoss
...Aufenthaltsräume
...Schlafetagen
Nassbereiche

Die Schlafräume befinden sich in der 1. und 2. Etage des Hauses. Insgesamt 34 Betten - Einzel- oder Etagenbetten bieten ihenn hier eine Schlafmöglichkeit. 

In gemütlicher Umgebung lässt es sich hier gut ausruhen

In gemütlicher Umgebung lässt es sich hier gut ausruhen. 

Die Zimmer haben unterschiedliche Bettenzahlen.

In der 1. Schlafetage befinden sich 19 Schlafplätze:

2 Vierbettzimmer (2 Einzelbetten / 1 Etagenbett)

3 Dreibettzimmer (Einzelbetten). 

1 Zweibettzimmer (mit Waschbecken). 

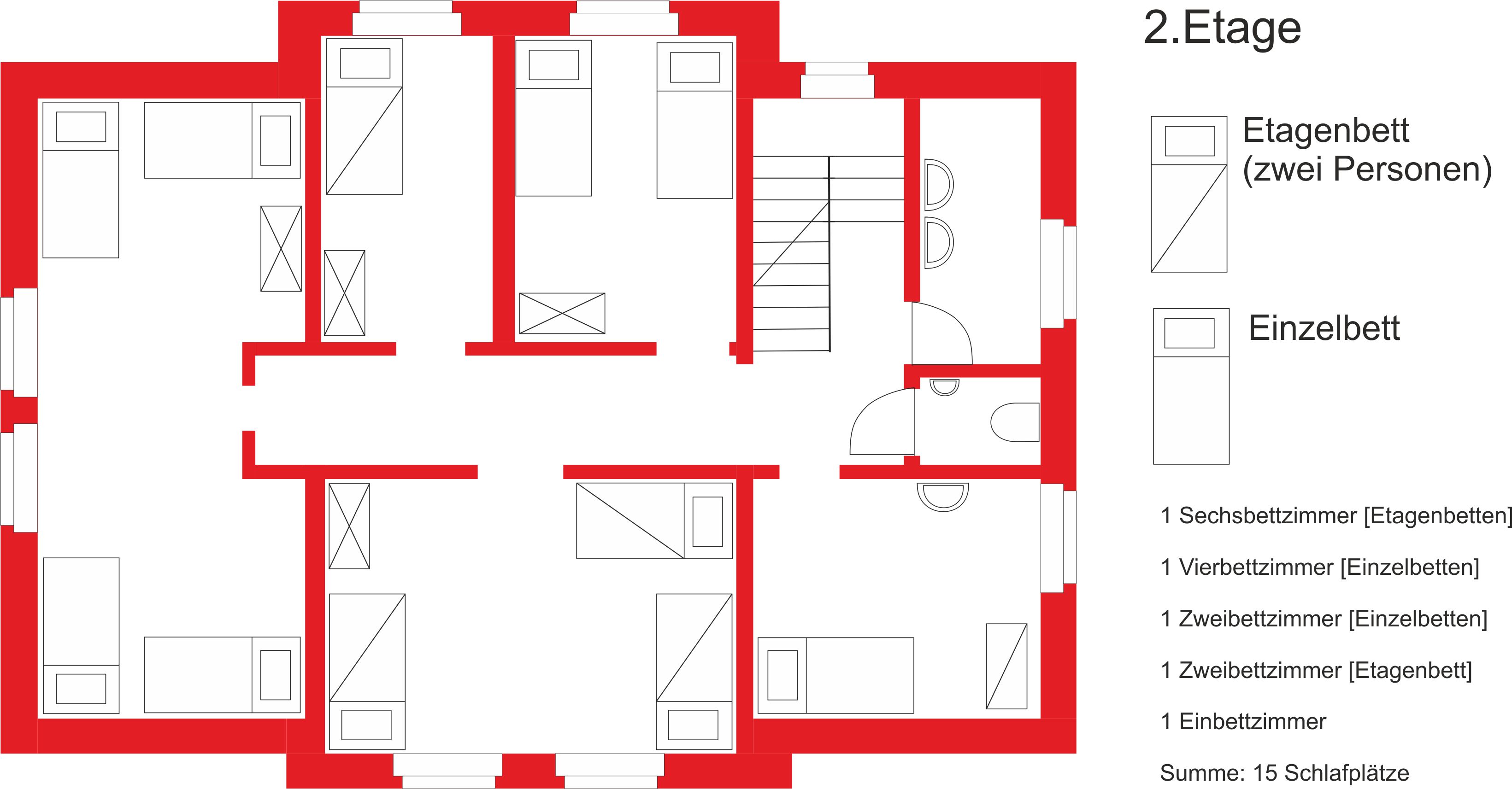
In der 2.Etage befinden sich 15 Schlafplätze:

1 Sechsbettzimmer (3 Etagenbetten)

1 Vierbettzimmer (4 Einzelbetten)

2 Zweibettzimmer

1 Einzelzimmer

Die Grundrisspläne mit einer Bettenplanskizze werden ihnen bei einer Buchung einer Freizeit zur Verfügung gestellt.